 
屋根、外壁ともにブラックを選定したスタイリッシュな外観です。リビングルーム横にはご希望のサンルームを設置しました。外構は建物と合わせて、シンプルにデザイン。駐車スペースは、車3台とバイク1台を止められるようにゆとりをもって確保しました。
 
 
玄関ドアは「すまいる」の標準仕様、YKKAPのヴェナートです。ホワイトウッドのドアが、ブラックの外観のアクセントとなっています。
 
 
玄関収納は大建工業のRⅢシリーズです。ブラウンの玄関収納が、ホワイトでまとめられた玄関ホールのアクセントとなっています。明るく広々とした玄関ホールが、家族をやさしく迎えてくれます。
 
 
1階の和室です。天井に茶系のクロス、窓にはベニガラのプリーツスクリーンを取り付けました。アジアンテイストを取り入れたシンプルで落ち着いた空間になっています。
 
 
ホワイトを基調としたLDKには、ご希望のリビング階段を設置しました。大きな掃き出し窓からは太陽の光が注ぎこみます。
 
 
広々としたLDKのキッチンは対面式です。食事の支度をしながらでも、ご家族の様子がよくわかります。テレビの設置場所は、サッシ位置をずらすことで確保しました。
 
 
TOTOのシステムキッチン、CJを採用しました。奥様ご希望の食洗機付きの、機能的で使い勝手の良いキッチンです。パール調の鏡面扉が美しいキッチンスペースはモノトーンでシックにまとめました。
 
 
トイレはTOTOのピュアレストQRです。背面にダークグレーのクロスを貼り、スタイリッシュな空間になっています。床はお手入れのしやすいクッションフロアを採用しています。
 
 
2階の子ども部屋は、ナチュラル系の色の床材を使用して、あたたかみのある部屋となっています。クローゼットを設けているので、物が散らからず広々と部屋を使えます。
 
 
2つの子ども部屋は、クローゼットを挟んでつながっています。ドアを2ヶ所設置しているので、将来は間仕切りを造り、それぞれの個室にすることも可能です。
 
 
M様ご家族と担当
 
平面図
 
1F平面図
 
 
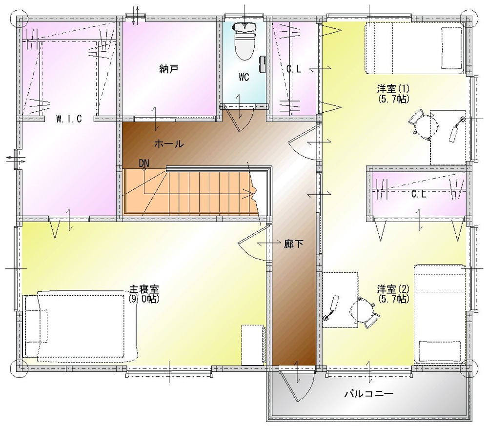
2F平面図